15
Upper Road, Wallington, SM6
OIEO £425,000
2 bedrooms, 2 bathrooms, 2 receptions
Summary:
Nestled on Upper Road in the charming area of Wallington backing directly on to Mellows Park, this delightful semi-detached house offers a perfect blend of comfort and convenience. Spanning an inviting 747 square feet, the property features two well-proportioned reception rooms, providing ample space for both relaxation and entertaining. The home boasts two spacious bedrooms, ensuring a restful retreat for all occupants. The presence of two bathrooms, including an en suite shower room, adds to the practicality of the layout, making morning routines a breeze. A utility room enhances the functionality of the home, providing additional storage and laundry space. Outside, the pretty rear garden presents a lovely outdoor area, ideal for enjoying sunny days or hosting gatherings with family and friends. For those with vehicles, off-street parking is available for one car, adding to the convenience of this charming residence. This property is not just a house; it is a welcoming home that offers a wonderful lifestyle in a sought-after location. Whether you are a first-time buyer or looking to downsize, this semi-detached gem is sure to impress.
Full Details:
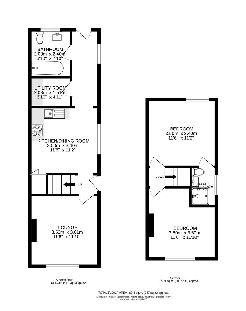
Accommodation
Obscure UPVC double glazed front door to:
Entrance Lobby:
Par glazed wooden door to:
Lounge:
UPVC double glazed window to front aspect, single panelled radiator, fitted carpet, TV and telephone points, picture rail, coved ceiling, fireplace with wooden surround.
Kitchen/Diner:
Modern range of wall units with matching cupboards and drawers below, roll top work surfaces with inset sink with chrome mixer tap, space for cooker, tiled splashback, directional spotlights, double panelled radiator, tiled flooring, space for fridge/freezer, understairs storage housing gas and electric meters, obscure UPVC double glazed window to side aspect, archway to:
Extended Inner Lobby:
Obscure UPVC double glazed window to side aspect, velux window, single panelled radiator, tiled flooring, UPVC double glazed door to rear garden, door to:
Utility Room:
Space and plumbing for washing machine and tumble dryer, tiled flooring, wooden work surfaces, wall mounted combination boiler.
Bathroom:
Modern three piece suite comprising panel enclosed bath with chrome mixer tap and hand shower, pedestal wash hand basin with chrome taps, low level push button flush WC, tiled flooring, wall mounted chrome towel rail, single panelled radiator, obscure UPVC double glazed window to rear aspect, extractor fan, sunken spotlights.
Stairs to 1st floor Landing:
Wooden door to:
Bedroom 1:
UPVC double glazed window to rear aspect with views across Mellows park, double panelled radiator, fitted carpet, coved ceiling, space for wardrobes, door to:
En-Suite Shower Room:
Comprising, luxury corner cubicle with thermostatic chrome shower, wash hand basin with chrome mixer tap and storage below, push button flush WC, tiled flooring, chrome towel rail, obscure UPVC double glazed window to side aspect, sunken spotlights.
Bedroom 2:
UPVC double glazed window to front aspect, double panelled radiator, fireplace with wooden surround, fitted carpet, loft access.
Rear Garden:
Mainly laid to lawn, patio area, fence enclosed, side access, garden shed.
Front:
Paved hardstanding for off street parking.
BUYER’S INFORMATION
Under UK law, estate agents are legally required to conduct Anti-Money Laundering (AML) checks on buyers and sellers to comply with regulations. These checks are mandatory, and estate agents can face penalties if they fail to perform them. We use the services of a third party to help conduct these checks thoroughly. As such there is a charge of £36 including vat, per person. Please note, we are unable to issue a memorandum of sale until these checks are complete
Viewing & Disclaimer:
Please contact us on 020 8647 4422 if you wish to arrange a viewing appointment for this property, or require further information.
Energy Performance Certificate
Click here to view the Energy Efficiency Rating and Environmental Impact Rating for this property.
Cromwells - SM6 endeavour to maintain accurate depictions of properties in Virtual Tours, Floor Plans and descriptions, however, these are intended only as a guide and purchasers must satisfy themselves by personal inspection.
