27
Manor Road, Wallington, SM6
Under Offer
Guide price £500,000
3 bedrooms, 1 bathrooms, 2 receptions
Summary:
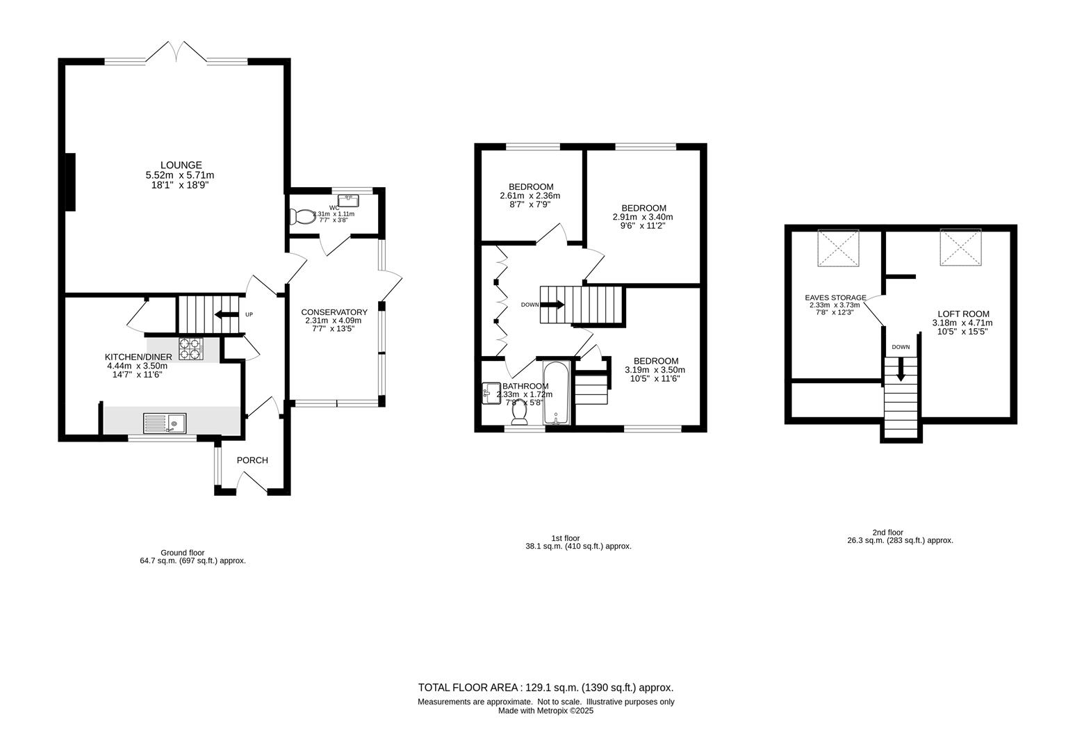
VENDOR SUITEDCromwells Wallington are pleased to offer this well presented three bedroom end of terrace home offering spacious accommodation in a convenient location close to transport links, shops and local amenities. With three well-proportioned bedrooms, a bathroom and downstairs WC, a well appointed kitchen/breakfast room, a large living room, and additional playroom, this home is ideal for families or those seeking extra space. There is a wraparound garden with lawn and patio areas providing a lovely setting to relax and entertain guests, and also a garage en-bloc for added convenience.Manor Road is perfectly located for easy access to both Wallington and Carshalton High Street, with a wide variety of shops, cafes and amenities nearby. Both Beddington Park and The Grove are lovely green spaces which are within easy walking distance. This is a great purchase for those looking to be close to transport links, with Wallington mainline train station only a short walk away with its great links into central London, plus local bus routes serving Sutton, Purley, Morden and Tooting. Come and experience the warmth and elegance of this lovely home for yourself.
Full Details:
Accommodation
Double glazed Entrance Porch
Entrance Hall
Built in cupboard, radiator, laminate flooring
Kitchen/Breakfast Room
Range of modern white fitted kitchen units and drawers, laminate worktop, inset one and a half bowl stainless steel sink with chrome mixer tap, integrated oven, gas hob and extractor fan above, integrated dishwasher, space for American fridge freezer, tiled splashback, vinyl flooring, pantry cupboard, under stairs cupboard, double glazed window to front aspect.
Living Room
Feature fireplace with log burner, built-in cupboards and shelving, radiator, fitted carpet, double glazed window windows and patio doors leading to garden
Playroom
Radiator, fitted carpet, double glazed windows to front and side aspect, patio door leading out to garden.
Downstairs WC/Utility Room
Space and plumbing for washing machine and tumble dryer, built-in cupboards, WC, wall mounted wash hand basin with chrome mixer tap, part tiled walls, tiled floor with underfloor heating, double glazed obscure window.
Stairs to 1st floor landing
Built in mirrored wardrobes, fitted carpet
Bedroom One
Radiator, fitted carpet, double glazed window to rear aspect.
Bedroom Two
Radiator, fitted carpet, double glazed window to rear aspect.
Bedroom Three
Radiator, fitted carpet, double glazed window to front aspect.
Stairs to
Loft Room
Eaves storage cupboards, Velux window, fitted carpet.
Bathroom
Modern suite comprising of panel enclosed bath with chrome mixer tap, thermostatic shower with hand shower attachment, dual vanity wash handbasins with chrome mixer taps and storage drawers below, WC heated towel rail, tiled walls, vinyl flooring, double glazed obscure window to front aspect.
Outside
Well maintained wraparound garden with lawn and patio areas, summerhouse, gate providing side access.
Garage en-bloc
BUYER’S INFORMATION
Under UK law, estate agents are legally required to conduct Anti-Money Laundering (AML) checks on buyers and sellers to comply with regulations. These checks are mandatory, and estate agents can face penalties if they fail to perform them. We use the services of a third party to help conduct these checks thoroughly. As such there is a charge of £36 including vat, per person. Please note, we are unable to issue a memorandum of sale until these checks are complete.
Viewing & Disclaimer:
Please contact us on 020 8647 4422 if you wish to arrange a viewing appointment for this property, or require further information.
Energy Performance Certificate
Click here to view the Energy Efficiency Rating and Environmental Impact Rating for this property.
Cromwells - SM6 endeavour to maintain accurate depictions of properties in Virtual Tours, Floor Plans and descriptions, however, these are intended only as a guide and purchasers must satisfy themselves by personal inspection.
