16
Elmwood Close, Wallington, SM6
Under Offer
Guide price £525,000
3 bedrooms, 1 bathrooms, 2 receptions
Summary:
Cromwells Wallington are delighted to offer this popular style three bedroom, extended family home. The property benefits from a conservatory, a pretty rear garden, a garage, and NO ONWARD CHAIN.Elmwood Close offers excellent access to local shops, primary schools including Hackbridge Primary and highly sought after grammar schools. There are great transport links with Hackbridge mainline train station only a short walk away with it's fast links into Central London. For those looking for local green space to enjoy, Beddington Park and the Wandle Trail are close by.
Full Details:
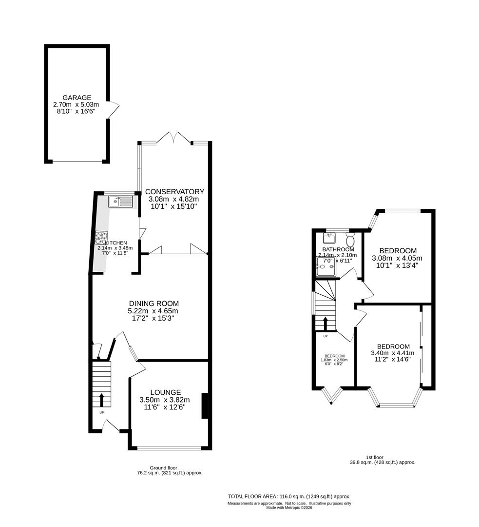
Accommodation
Obscure double glazed front door to..
Entrance hall
Obscure UPVC double glazed window to front aspect, single panel radiator, under stairs storage cupboard, wall mounted thermostat.
Lounge
UPVC double glazed window to front aspect, double panel radiator, fireplace with solid surround, coved ceiling and ceiling rose.
Dining room
Single panel radiator, coved ceiling, wall mounted “Worcester” combination boiler, access to under stairs storage cupboard, bespoke stained glass sliding doors to conservatory.
Kitchen
Range of fitted wall units with matching cupboards and drawers below, roll top work surfaces with inlaid ceramic sink and chrome mixer tap, space for cooker with extractor fan above, space and plumbing for washing machine, space for tall standing fridge/freezer, tiled effect flooring, UPVC double glazed window to rear aspect.
Conservatory
UPVC double glazed windows to side and rear aspects and doors leading to garden, tiled flooring, pull switch ceiling fan.
Stairs to 1st floor landing
Obscure UPVC double glazed window to side aspect.
Bedroom one
UPVC double glazed bay window to front aspect, fitted wardrobes and storage cupboards, single panel radiator.
Bedroom two
UPVC double glazed bay window to rear aspect, single panel radiator.
Bedroom three
UPVC double glazed oriel bay window to front aspect, fitted shelving and storage, single panel radiator.
Bathroom
Consisting of tiled cubicle with thermostatic shower, wash hand basin with chrome mixer tap and storage cupboards below, low-level push button flush WC, heated chrome towel rail, tiled walls, obscure UPVC double glazed window to rear aspect.
Rear garden (South Facing)
Approximately 75ft
Large paved patio area and footpath leading to rear, centered lawn section with shrubs bordering, wooden garden shed, fence enclosed, gated side access, outside tap.
Garage
Up/Over door at front.
BUYER’S INFORMATION
Under UK law, estate agents are legally required to conduct Anti-Money Laundering (AML) checks on buyers and sellers to comply with regulations. These checks are mandatory, and estate agents can face penalties if they fail to perform them. We use the services of a third party to help conduct these checks thoroughly. As such there is a charge of £36 including vat, per person. Please note, we are unable to issue a memorandum of sale until these checks are complete
Viewing & Disclaimer:
Please contact us on 020 8647 4422 if you wish to arrange a viewing appointment for this property, or require further information.
Energy Performance Certificate
Click here to view the Energy Efficiency Rating and Environmental Impact Rating for this property.
Cromwells - SM6 endeavour to maintain accurate depictions of properties in Virtual Tours, Floor Plans and descriptions, however, these are intended only as a guide and purchasers must satisfy themselves by personal inspection.
