26
Clifton Road, Wallington, SM6
Under Offer
Offers over £1,000,000
6 bedrooms, 4 bathrooms, 2 receptions
Summary:
Nestled on Clifton Road in the charming area of Wallington, this exquisite semi-detached house offers a remarkable blend of luxury and comfort. Spanning over 2600 sq ft, this new build property is ready for you to move straight in, boasting a 10-year NHBC guarantee and no onward chain.The home features two spacious reception rooms, perfect for entertaining guests or enjoying quiet family evenings. With six well-appointed bedrooms, there is ample space for family living or accommodating guests. The four modern bathrooms are fitted with high-end sanitaryware and benefit from underfloor heating, ensuring a warm and inviting atmosphere throughout.At the heart of the home lies a bespoke kitchen, finished to the highest specification. It showcases stunning quartz worktops and is equipped with integrated AEG appliances, making it a dream for any culinary enthusiast. The thoughtful design and luxurious finishes are evident in every corner of this property.Outside, the private driveway provides parking for up to two vehicles, adding to the convenience of this splendid home. The location is equally impressive, situated in central Wallington, just a stone's throw from the high street. Residents will enjoy easy access to a wide variety of shops and amenities, as well as the nearby train station, making commuting a breeze.This property is a true gem, offering a perfect combination of modern living and prime location. Do not miss the opportunity to make this luxurious house your new home.
Key Features:
- AEG APPLIANCES
- UNDERFLOOR HEATING
- DESIGNER ROCA SANITARYWARE
- NEW BUILD
- CLOSE TO THE TRAIN STATION
- HIGH SPECIFICATON
- OFF STREET PARKING
- NO ONWARD CHAIN
Full Details:
Accommodation
Sheltered Entrance
Decorative tiled flooring, stained glass wooden front door to..
Spacious Entrance Hall
Herringbone tiled flooring with underfloor heating, access to large under stairs storage cupboards.
Lounge
UPVC double glazed sash windows to front bay, feature panelled walls, herringbone tiled flooring with underfloor heating, decorative coving and ceiling rose, wall lights, fireplace with solid surround.
Open plan Kitchen/Diner/Family Room
Range of fitted wooden wall units with matching cupboards and drawers below, Quartz worktops with with inlaid butler sink and mixer tap, inlaid “AEG” induction hob with built-in extractor fan, integrated double oven and microwave, American style fridge/freezer, herringbone tiled flooring with underfloor heating, extractor fan, obscure UPVC double glazed window to side aspect.
Family Area
Breakfast bar and storage cupboards, feature skylight with display lighting, bespoke double glazed doors to rear aspect.
Utility Room
Range fitted storage cupboards with space and plumbing for washing machine and tumble dryer, cupboard housing mega flow system and boiler, worktop with inlaid stainless steel sink and mixer tap with storage cupboard below, herringbone tiled flooring with underfloor heating, extractor fan, obscure UPVC double glazed window to side aspect.
Downstairs WC
Consisting of low-level push button flush WC, panel walls, wash hand basin with chrome mixer tap and storage space below, tiled flooring with underfloor heating, extractor fan.
Stairs to 1st floor landing
Newly fitted carpet, modern radiator.
Main Bedroom
UPVC double glazed windows to front aspect, two modern radiators, newly fitted carpet, walk in wardrobe with fitted shelving, hanging rail and drawers.
Ensuite Shower Room
Luxury suite consisting of tiled cubicle with thermostatic shower and hand attachment, floating wash hand basin with chrome mixer tap and storage cupboards below, low-level push button flush WC, part tiled walls, tiled flooring with underfloor heating, obscure UPVC double glazed window to side aspect, fitted mirror with display lighting, extractor fan, shaver point, heated chrome towel rail.
Bedroom Two
UPVC double glazed sash window to rear aspect, modern radiator, newly fitted carpet.
Ensuite Shower Room
Luxury suite consisting of tiled cubicle with thermostatic shower and hand attachment, floating wash hand basin with chrome mixer tap and storage cupboards below, part tiled walls, tiled flooring with underfloor heating, heated chrome towel rail, obscure UPVC double glazed window to side aspect, fitted mirror with display lighting, shaver point, extractor fan.
Bedroom Three
UPVC double glazed sash windows to rear aspect, two modern radiators, newly fitted carpet.
Family Bathroom
Luxury four piece suite comprising freestanding bathtub with chrome mixer tap and shower attachment, tiled cubicle with thermostatic shower and hand attachment, floating wash hand basin with chrome mixer tap and storage cupboards below, low-level push button flush WC, part tiled walls, tiled flooring with underfloor heating, fitted mirror with display lighting, shaver point, heated chrome towel rail, UPVC double glazed window to front aspect, extractor fan.
Stairs to 2nd floor landing
Newly fitted carpet and access to storage cupboard.
Bedroom Four
Velux window to front aspect, modern radiator, access to storage cupboard, newly fitted carpet.
Bedroom Five
UPVC double glazed window to rear aspect, modern radiator, newly fitted carpet, access to eaves storage.
Bedroom Six
Velux window to side aspect, modern radiator, newly fitted carpet, access to eaves storage.
Shower Room
Luxury suite consisting of tiled cubicle with thermostatic shower and hand attachment, wash hand basin with chrome mixer tap and storage cupboard below, low-level push button flush WC, tiled flooring with underfloor heating, fitted mirror with display lighting, heated chrome towel rail, shaver point, Velux window to front aspect.
Rear Garden – approximately 70ft
Large porcelain paved patio area leading to lawn section with shrubs bordering, gated side access, fence enclosed, outside water supply and lighting
Front
Block paved driveway providing off street parking with brick wall border.
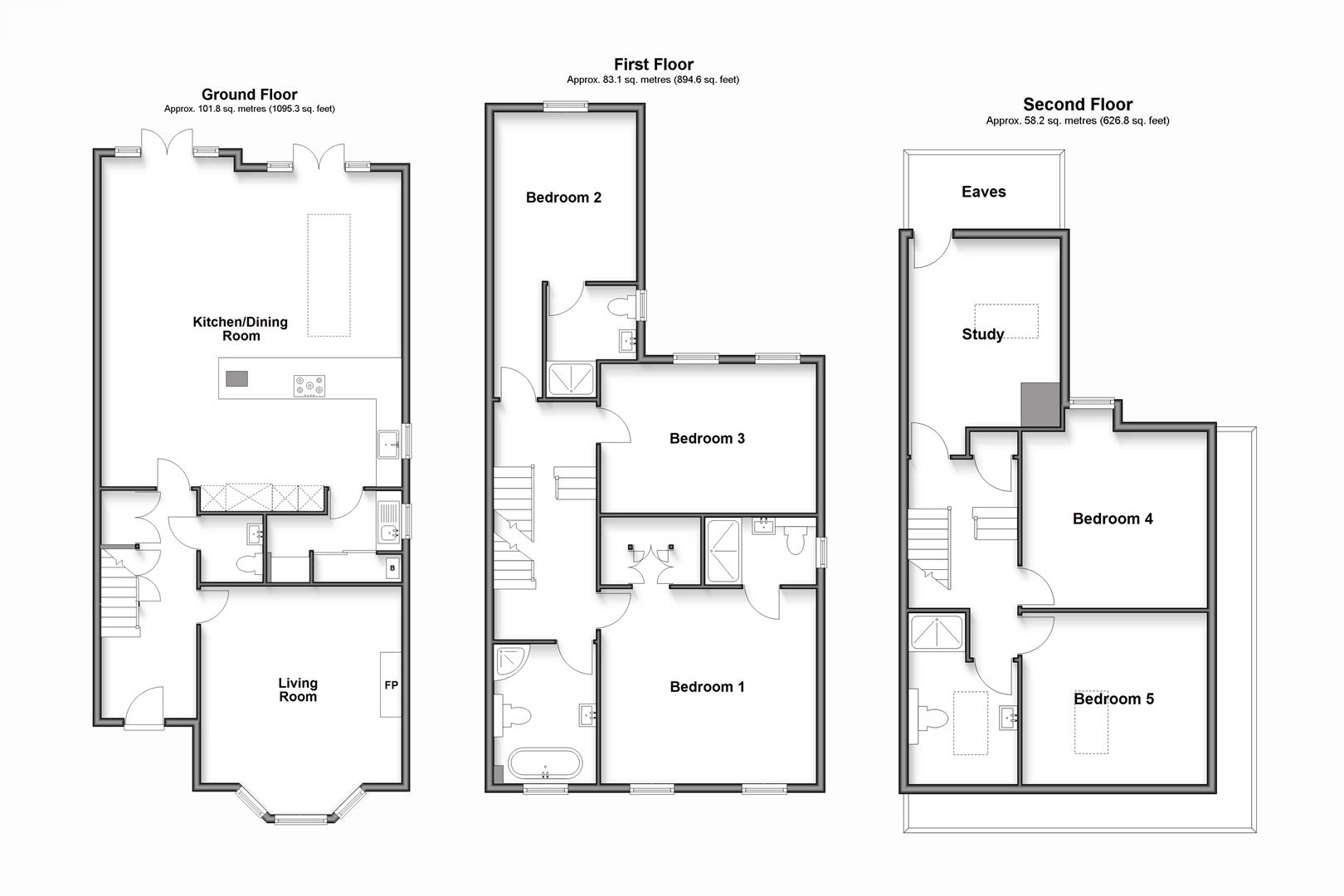
ROOM MEASUREMENTS
Living Room: 17'7 x 15'4 (5.36m x 4.68m)
Kitchen/Breakfast Room: 25'8 x 23'3 (7.83m x 7.09m)
Utility Area: 10'7 maximum x 7'3 (3.23m x 2.21m)
1ST FLOOR
Bedroom 1: 15'4 x 14'2 (4.68m x 4.32m)
En-Suite Shower Room
Bedroom 2: 20'8 maximum (6.30m) narrowing to 12'1 (3.69m) x 10'2 (3.10m)
Bedroom 3: 15'7 x 11'0 (4.75m x 3.36m)
Bathroom: 9'10 x 7'6 (3.00m x 2.29m)
2ND FLOOR
Bedroom 4: 13'4 x 12'6 (4.07m x 3.81m)
Bedroom 5: 12'5 x 12'1 (3.79m x 3.69m)
Study: 14'8 x 9'7 (4.47m x 2.92m)
Bathroom: 8'4 x 7'6 (2.54m x 2.29m)
BUYER’S INFORMATION
Under UK law, estate agents are legally required to conduct Anti-Money Laundering (AML) checks on buyers and sellers to comply with regulations. These checks are mandatory, and estate agents can face penalties if they fail to perform them. We use the services of a third party to help conduct these checks thoroughly. As such there is a charge of £36 including vat, per person. Please note, we are unable to issue a memorandum of sale until these checks are complete.
Viewing & Disclaimer:
Please contact us on 020 8647 4422 if you wish to arrange a viewing appointment for this property, or require further information.
Energy Performance Certificate
Click here to view the Energy Efficiency Rating and Environmental Impact Rating for this property.
Cromwells - SM6 endeavour to maintain accurate depictions of properties in Virtual Tours, Floor Plans and descriptions, however, these are intended only as a guide and purchasers must satisfy themselves by personal inspection.
