20
Church Road, Wallington, SM6
Under Offer
OIEO £525,000
3 bedrooms, 1 bathrooms, 1 receptions
Summary:
Nestled within a secure gated development comprising of just four homes, this modern property offers the perfect blend of comfort and style. The property benefits from modern open plan living, two parking spaces and no onward chain.The consists of an open-plan kitchen, dining area and living room ideal for family gatherings and entertaining friends. The contemporary design is complemented by ample natural light, creating a warm and inviting atmosphere.This home features a family-sized bathroom and two outside spaces. A grass garden at the front and a rear patio courtyard garden.The property also benefits from two allocated parking spaces. Situated next to Carew Manor School and close to open green spaces, this location is perfect for families seeking both education and leisure.
Full Details:
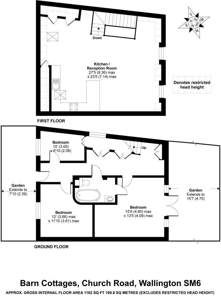
Accommodation
Covered entrance
Part glazed wooden front door to..
Spacious entrance hall
UPVC double glazed window to side aspect and door leading to rear garden, access to large under stairs storage cupboard, fitted storage cupboard, double panel radiator.
Main bedroom
Double glazed full length windows and patio doors to front aspect leading to private front garden, range of fitted wardrobes and drawers, modern radiator, access to bathroom.
Bedroom two
Double glazed window to rear aspect, double panel radiator.
Bedroom three
Double glazed window to rear aspect, double panelled radiator, built in wardrobe.
Bathroom
Comprising freestanding roll top bath tub with chrome mixer tap and thermostatic shower, large wash hand basin with chrome mixer tap and storage cupboard below, low-level push button flush WC, heated chrome towel rail, extractor fan, tiled flooring, part tiled walls.
Stairs to first floor
Open plan lounge/diner/kitchen
Range of fitted gloss wall units with matching cupboards and drawers below, granite worktops with inlaid stainless steel sink and chrome mixer tap, inlaid hob with oven/grill below and extractor fan above, integrated dishwasher, space for fridge and freezer, space and plumbing for washing machine, stripped floorboards, three large storage cupboards, three double panelled radiators, double glazed windows to front and side aspects and Velux windows to rear, feature beamed ceiling and walls.
Rear garden
Courtyard garden with patio area, storage shed, fence enclosed.
Front
Artificial lawn section with paved footpath at side brick wall and fence enclosed with two allocated parking spaces and gated entrance with security entry phone system.
BUYER’S INFORMATION
Under UK law, estate agents are legally required to conduct Anti-Money Laundering (AML) checks on buyers and sellers to comply with regulations. These checks are mandatory, and estate agents can face penalties if they fail to perform them. We use the services of a third party to help conduct these checks thoroughly. As such there is a charge of £36 including vat, per person. Please note, we are unable to issue a memorandum of sale until these checks are complete
Viewing & Disclaimer:
Please contact us on 020 8647 4422 if you wish to arrange a viewing appointment for this property, or require further information.
Energy Performance Certificate
Click here to view the Energy Efficiency Rating and Environmental Impact Rating for this property.
Cromwells - SM6 endeavour to maintain accurate depictions of properties in Virtual Tours, Floor Plans and descriptions, however, these are intended only as a guide and purchasers must satisfy themselves by personal inspection.
