17
Bernard Road, Wallington, SM6
£395,000
2 bedrooms, 1 bathrooms, 2 receptions
Summary:
Don't miss out on the opportunity to own this two bedroom end of terrace home, which is sold with the benefit of no onward chain. The property does require modernisation but offers two reception rooms, two good sized bedrooms, a kitchen, upstairs family bathroom and a rear garden.Bernard Road is perfectly located for easy access to both Wallington and Carshalton High Street, with a wide variety of shops, cafes and amenities nearby. Both Beddington Park and The Grove are lovely green spaces which are within easy walking distance. This is a great purchase for those looking to be close to transport links, with Wallington mainline train station only an 10 minute walk away with it's great links into central London, plus local bus routes serving Sutton, Purley, Morden and Tooting.
Full Details:
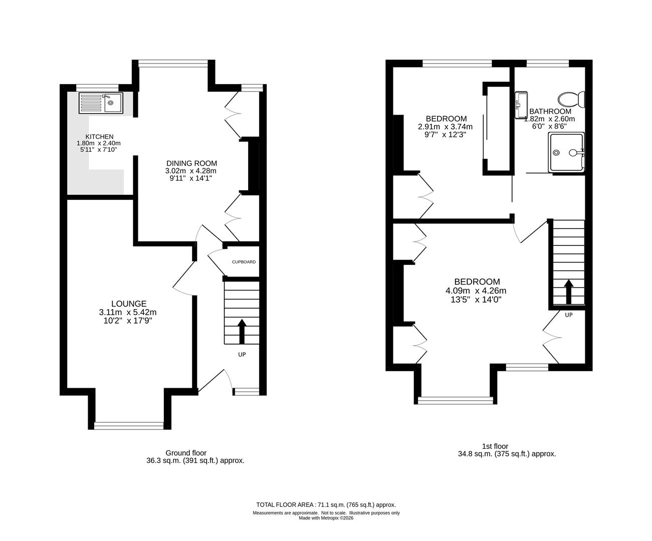
Accommodation
Entrance Hall
Radiator, under stairs storage cupboards
Living Room
Two radiators, double glazed windows to front aspect, feature fireplace
Dining Room
Built-in cupboards, radiator, double glazed patio door leading to garden
Kitchen
Range of fitted kitchen units and drawers, worktop, inset stainless steel sink with chrome taps, double glazed window to rear aspect
Stairs to 1st floor landing
Loft access
Bedroom One
Double glazed windows to front aspect, radiators, built-in wardrobes and storage, cupboard housing immersion heater
Bedroom Two
Double glazed window to rear aspect, built-in wardrobe, cupboard housing boiler, radiator
Bathroom
Three piece suite comprising shower cubicle with sliding door, vanity wash hand basin with chrome mixer tap and storage below, WC, heated chrome towel rail, tiled walls, extractor fan, laminate flooring.
Outside
Rear Garden
Shed, paved patio area, gate providing side access
BUYER’S INFORMATION
Under UK law, estate agents are legally required to conduct Anti-Money Laundering (AML) checks on buyers and sellers to comply with regulations. These checks are mandatory, and estate agents can face penalties if they fail to perform them. We use the services of a third party to help conduct these checks thoroughly. As such there is a charge of £36 including vat, per person. Please note, we are unable to issue a memorandum of sale until these checks are complete
Viewing & Disclaimer:
Please contact us on 020 8647 4422 if you wish to arrange a viewing appointment for this property, or require further information.
Energy Performance Certificate
Click here to view the Energy Efficiency Rating and Environmental Impact Rating for this property.
Cromwells - SM6 endeavour to maintain accurate depictions of properties in Virtual Tours, Floor Plans and descriptions, however, these are intended only as a guide and purchasers must satisfy themselves by personal inspection.
