23
South Tadworth Farm Close, Tadworth, KT20
Guide price £700,000
3 bedrooms, 3 bathrooms, 1 receptions
Summary:
Located in a sought after cul de sac on the fringes of the world famous Epsom Downs, this spacious THREE DOUBLE BEDROOM modern family home. The property offers versatile accommodation spread over three floors, a downstairs WC, three bathrooms, a pretty rear garden and ample off street parking.Epsom Downs is best known for its racecourse and surrounding open countryside, ideal for walking the dog or going for a leisurely walk, well served by local pubs and restaurants, Epsom Downs is also ideally situated for transport links to surrounding towns, such as Banstead, Epsom, Ewell & Sutton, as well as the M25 which in turn provides access to Heathrow & Gatwick airports.The area is also well served by railway networks from Epsom Downs station and Tattenham Corner Station, into London Victoria and London Bridge, and the local bus routes include Sutton, Banstead, Epsom, Redhill & Reigate. There are a number of excellent local schooling options, in both private & state sectors and Epsom Town centre offers a range of shopping and recreational facilities.
Full Details:
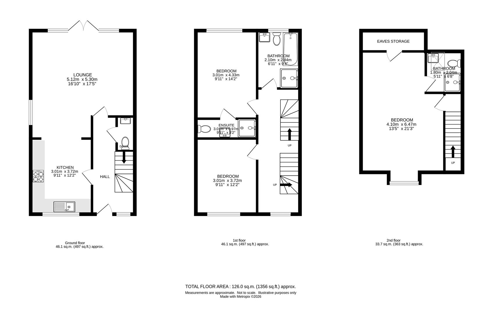
Accommodation
epc and floor plan coming soon...
Sheltered entrance
Obscure double glazed composite front door to:
Entrance hall
UPVC double glazed window to front aspect, wood laminate flooring, single panel radiator, under stairs storage with sliding drawers, wall mounted “Hive” heating control.
Lounge/diner
UPVC double glazed patio doors to rear aspect, wood laminate flooring, UPVC double glazed window to side aspect, two double panel radiators.
Kitchen
Range of fitted wooden wall units with matching cupboards and drawers below, roll top work surfaces with inlaid stainless steel sink and chrome mixer tap, integrated fridge/freezer, integrated dishwasher, integrated washer/dryer, inlaid gas hob with extractor fan above and oven/grill below, double panel radiator, cupboard housing boiler, extractor fan, tiled splash back, UPVC double glazed window to front aspect.
Downstairs WC
Consisting of low-level push button flush WC, pedestal wash hand basin with chrome mixer tap, tiled flooring, single panel radiator, extractor fan.
Stairs to 1st floor landing
Wall mounted “Hive” heating control, two single panel radiators, fitted storage cupboard, UPVC double glazed window to front aspect, large cupboard space housing hot water tank.
Bedroom two
UPVC double glazed window to rear aspect, double panel radiator, wall lights.
Ensuite shower room
Consisting of tiled cubicle with thermostatic shower, pedestal wash hand basin with chrome mixer tap, low-level push button flush WC, heated chrome towel, extractor fan, tiled flooring, tiled walls, heated chrome towel rail.
Bedroom three
UPVC double glazed window to front aspect, single panel radiator.
Bathroom
Spacious four piece suite consisting of tiled cubicle with thermostatic shower, panel enclosed bath with chrome mixer tap and shower attachment, pedestal wash hand basin with chrome mixer tap, low-level push button flush WC, heated chrome towel rail, tiled flooring, tiled walls, extract fan, obscure UPVC double glazed window to rear aspect, shaver point.
Stairs to 2nd floor
Main bedroom
UPVC double glazed window to front aspect and Velux window at rear, access to eaves storage, two double panel radiators, loft access.
En suite shower room
Consisting of tiled cubicle with thermostatic shower, pedestal wash and basin with chrome mixer tap, low-level push button flush WC, heated chrome towel rail, tiled flooring, tiled walls, extract fan, Velux window to rear.
Rear garden
Paved patio area leading to lawn section with shrubs and flowerbeds bordering, fence enclosed, garden shed.
Front
Block paved driveway providing off street parking for two vehicles, lawn and shrubs at side, wall mounted EV point, outside tap.
BUYER’S INFORMATION
Under UK law, estate agents are legally required to conduct Anti-Money Laundering (AML) checks on buyers and sellers to comply with regulations. These checks are mandatory, and estate agents can face penalties if they fail to perform them. We use the services of a third party to help conduct these checks thoroughly. As such there is a charge of £36 including vat, per person. Please note, we are unable to issue a memorandum of sale until these checks are complete.
Viewing & Disclaimer:
Please contact us on 020 8647 4422 if you wish to arrange a viewing appointment for this property, or require further information.
Energy Performance Certificate
Click here to view the Energy Efficiency Rating and Environmental Impact Rating for this property.
Cromwells - SM6 endeavour to maintain accurate depictions of properties in Virtual Tours, Floor Plans and descriptions, however, these are intended only as a guide and purchasers must satisfy themselves by personal inspection.
