16
Park Road, Wallington, SM6
Guide price £775,000
4 bedrooms, 1 bathrooms, 2 receptions
Summary:
*CHAIN FREE* A rare chance to acquire an immaculately presented four bedroom extended family home. The property is situated in a popular location close to all local shops and transport links and benefits from a 21ft lounge, a utility room, a downstairs WC and off street parking.Situated in a prime central location, this home is just a stone's throw away from Wallington's bustling high street, with convenient bus and train links that are ideal for commuters. Families will appreciate the proximity to excellent schools, including easily accessible grammar schools, making this property a perfect choice for those seeking a vibrant community.
Full Details:
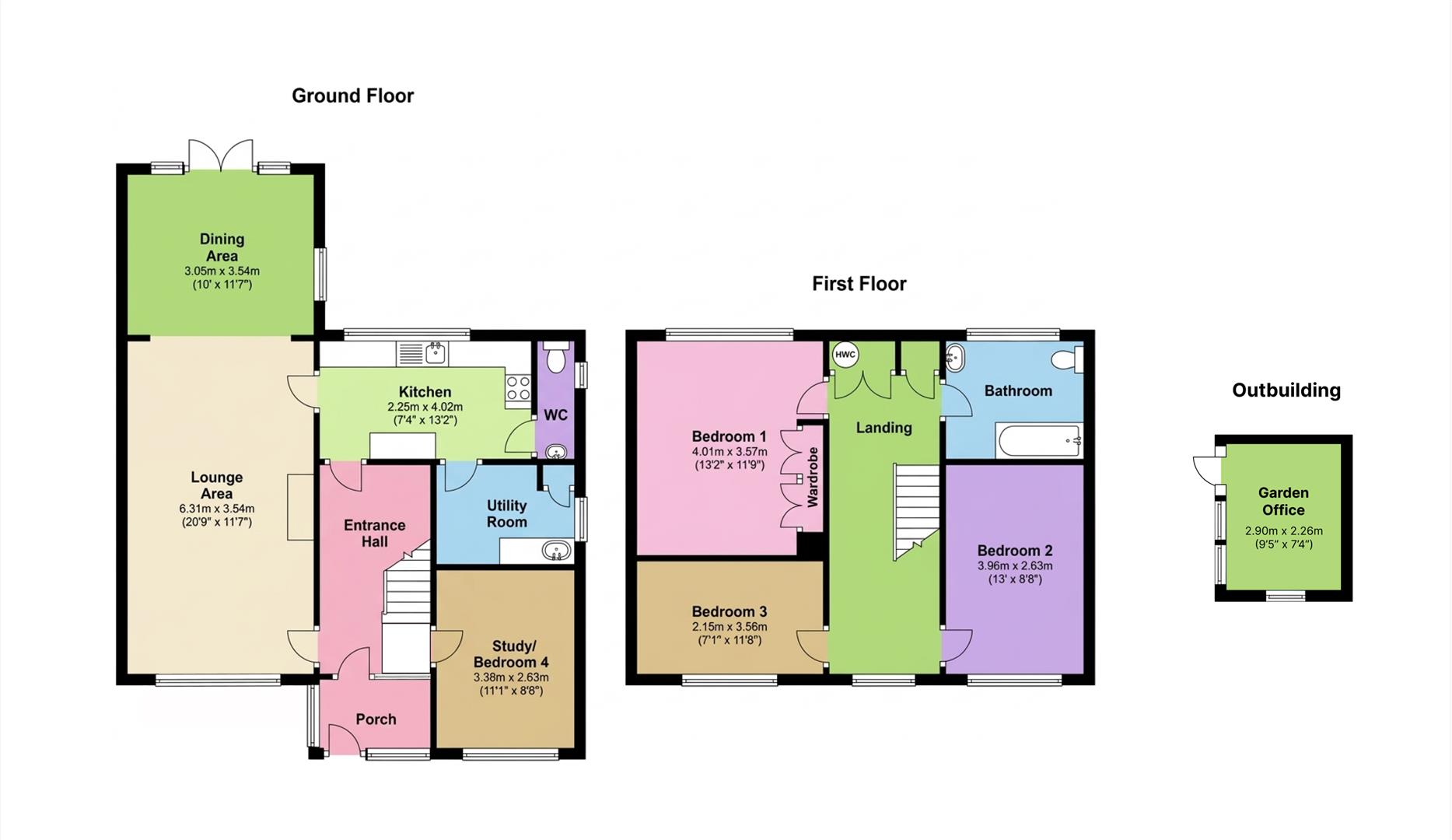
Accommodation
Part Glazed Entrance Porch:
Wooden front door to:
Spacious Entrance Hall:
Obscure glazed window to front aspect, single
panelled radiator, Karndean flooring, large
understairs storage, wall light, wall mounted alarm panel,
security sensor.
Lounge:
21'4 x 11'7 (6.50m x 3.53m)
UPVC double glazed window to front aspect,
double panelled radiator and single panelled
radiator, open fireplace with brick surround, wall
lights, coved ceiling, security sensor, wall mounted
thermostat.
Dining Room:
11'11 x 9'9 (3.63m x 2.97m)
UPVC double glazed doors to rear aspect and
window to side, Karndean flooring, double panelled
radiator, coved ceiling.
Kitchen:
13'2 x 7'11 (4.01m x 2.41m)
Range of fitted wooden wall units with matching
doors and drawers below, granite effect roll top
work surface with inset “Blanco” sink and chrome
mixer tap, inset gas hob with oven/grill below, and
extractor fan above, space and plumbing for
dishwasher, display underlighting, UPVC double
glazed window to rear aspect, breakfast bar.
Utility Room:
8'11 x 6'2 (2.72m x 1.88m)
Range of fitted wooden cupboards and wall units,
inset stainless steel sink and chrome mixer tap,
space for oven, space and plumbing for
washing machine, space for tall standing
fridge/freezer, Karndean flooring, obscure UPVC
double glazed window to side aspect, extractor
fan.
Downstairs WC:
Consisting of low level push button flush WC,
wash hand basin with chrome mixer tap,
heated chrome towel rail, tiled walls, tiled
flooring, extractor fan, obscure UPVC double
glazed window to side aspect.
Bedroom 4/Study:
11'11 x 8'2 (3.63m x 2.49m)
UPVC double glazed window to front aspect,
single panelled radiator, tiled effect flooring.
Stairs to Spacious First Floor Landing:
Storage cupboard, single panelled radiator,
loft access, airing cupboard, UPVC double
glazed window to front aspect, security
sensor.
Master Bedroom:
13'9 x 11'8 (4.19m x 3.56m)
UPVC double glazed window to rear aspect,
single panelled radiator, wood effect flooring.
Bedroom 2:
13'7 x 8'8 (4.14m x 2.64m)
UPVC double glazed window to front aspect,
single panelled radiator, laminate flooring.
Bedroom 3:
11'11 x 7'10 (3.63m x 2.39m)
UPVC double glazed window to front aspect,
single panelled radiator, laminate flooring.
Bathroom:
Three piece suite comprising panel enclosed
bath with chrome mixer tap and thermostatic
shower, pedestal wash hand basin with
chrome mixer tap, low level push button flush
WC, double panelled radiator, Karndean
flooring, tiled walls, obscure UPVC double
glazed window to rear aspect.
Rear Garden:
Approx 80ft. Mainly laid to lawn with a paved patio and side access.
Features include mature shrubs, a pergola, and an outside tap.
Three garden sheds, and a home office equipped with power/lighting
and air conditioning.
Front:
Paved driveway providing off street parking
with lawn area at side, hedge and fence
border, outside tap.
BUYER’S INFORMATION
Under UK law, estate agents are legally required to conduct Anti-Money Laundering (AML) checks on buyers and sellers to comply with regulations. These checks are mandatory, and estate agents can face penalties if they fail to perform them. We use the services of a third party to help conduct these checks thoroughly. As such there is a charge of £36 including vat, per person. Please note, we are unable to issue a memorandum of sale until these checks are complete
Viewing & Disclaimer:
Please contact us on 020 8647 4422 if you wish to arrange a viewing appointment for this property, or require further information.
Energy Performance Certificate
Click here to view the Energy Efficiency Rating and Environmental Impact Rating for this property.
Cromwells - SM6 endeavour to maintain accurate depictions of properties in Virtual Tours, Floor Plans and descriptions, however, these are intended only as a guide and purchasers must satisfy themselves by personal inspection.
