30
Carew Road, Wallington, SM6
Offers over £800,000
4 bedrooms, 1 bathrooms, 3 receptions
Summary:
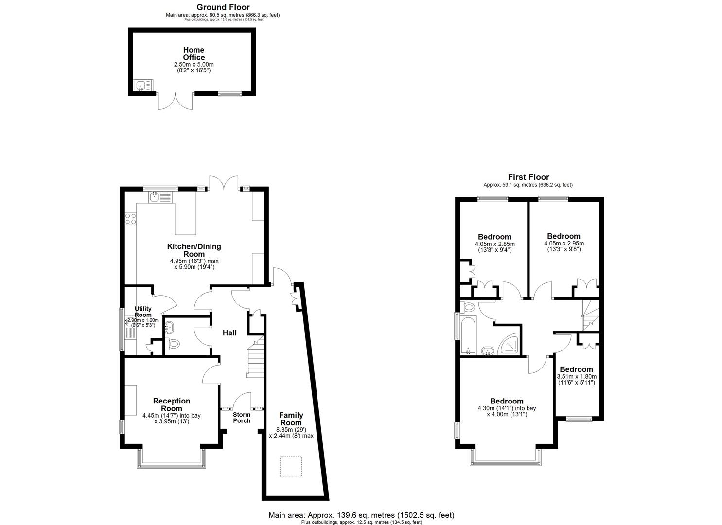
Nestled on the charming Carew Road in Wallington, this exquisite detached house offers a perfect blend of period elegance and modern convenience. With four spacious bedrooms and three inviting reception rooms, this property is ideal for families seeking both comfort and style. As you step inside, you will be greeted by stunning period features that include a beautiful stained glass window, high ceilings adorned with ornate coving, and original wooden banisters that exude character. The feature fireplaces add a touch of warmth and charm, making the living spaces truly inviting. The bespoke handcrafted kitchen is a chef's delight, designed with both functionality and aesthetics in mind. Engineered wood flooring flows throughout the home, enhancing its sophisticated appeal. The property also boasts a utility room and a convenient downstairs WC, ensuring practicality for everyday living. Additionally, the converted garage has been transformed into a delightful family room, providing extra space for relaxation or entertainment.Outside, the detached garden outbuilding presents a versatile opportunity, perfect for use as an office or hobby room, catering to the needs of modern living. Situated in a prime central location, this property is just a stone's throw away from Wallington's vibrant high street, offering a variety of shops, cafes, and excellent transport links, including the nearby train station. Do not miss the chance to make this remarkable house your new home.
Full Details:
Accommodation
Entrance Hall
Stained glass leaded light windows to front aspect, original ornate banisters and handrail, engineered oak flooring, Smart 'Nest' heating and hot water control panel, radiator, door to large understairs storage cupboard.
Converted Garage/Family Room
Tiled flooring with underfloor heating, fitted cupboard with built-in shelving, double glazed door leading out to garden.
Downstairs WC
Pedestal wash hand basin with chrome mixer tap, WC, extractor fan, engineered oak flooring
Lounge
UPVC double glazed bay window to front aspect with bespoke fitted shutters, engineered oak flooring, built-in storage, feature stone fireplace with log burning basket and granite hearth, radiator.
Open plan Kitchen Dining Room
Kitchen Area
Range of bespoke hand built fitted kitchen cupboards and drawers, full height built in pantry with internal shelving and drawer units, integrated fridge freezer, built-in 'Bosch' oven, gas hob and extractor fan above, inset ceramic sink with chrome mixer tap, composite worktops, breakfast bar with pendant lights, tiled flooring, double glazed window to rear aspect.
Dining Area
Feature fireplace with stone surround, engineered oak flooring, radiator, built in storage cupboards and shelving, double glazed UPVC patio doors and windows to rear aspect.
Utility Room
Fitted cupboards with laminate worktop and stainless steel sink with chrome mixer tap, space and plumbing for washing machine and dishwasher, heated towel rail, double glazed obscure windows to side aspect, hot water cylinder, cupboard housing 'Valliant' boiler.
Stairs to 1st floor landing
Loft access ( insulated, boarded for storage with light)
Bedroom One
Double glazed windows to front aspect with bespoke fitted shutters, window to side aspect with fitted shutters, radiator, fitted carpet.
Bedroom Two
Radiator, double glazed window to rear aspect with bespoke fitted shutters, fitted carpet.
Bedroom Three
Fitted wardrobes, fitted carpet, radiator, double glazed windows to rear aspect with bespoke fitted shutters, TV Point.
Bedroom Four
Laminate flooring, double glazed window to front aspect with bespoke fitted shutters, radiator, built in storage cupboard
Bathroom
Modern suite comprising of corner shower cubicle with sliding doors, thermostatic shower with rain showerhead and hand shower attachment, wall mounted vanity wash hand basin with chrome mixer tap and storage below, bath with chrome mixer tap and hand shower attachment, WC, heated chrome towel rail, tiled walls and flooring, double glazed obscure windows to side aspect.
Outside
Paved driveway with ample off street parking
Rear Garden
Mainly laid to lawn with borders, paved patio area, side access with hot and cold running water and wall mounted Butler sink, outdoor lighting with remote controls, security sensor light
Outbuildings - tv point, sink.
Workshop/office
Finished to a high standard with tiled flooring, sink, TV point, double glazed windows and matching French doors.
Brick built storage sheds with secure lockable doors,
BUYER’S INFORMATION
Under UK law, estate agents are legally required to conduct Anti-Money Laundering (AML) checks on buyers and sellers to comply with regulations. These checks are mandatory, and estate agents can face penalties if they fail to perform them. We use the services of a third party to help conduct these checks thoroughly. As such there is a charge of £36 including vat, per person. Please note, we are unable to issue a memorandum of sale until these checks are complete.
Viewing & Disclaimer:
Please contact us on 020 8647 4422 if you wish to arrange a viewing appointment for this property, or require further information.
Energy Performance Certificate
Click here to view the Energy Efficiency Rating and Environmental Impact Rating for this property.
Cromwells - SM6 endeavour to maintain accurate depictions of properties in Virtual Tours, Floor Plans and descriptions, however, these are intended only as a guide and purchasers must satisfy themselves by personal inspection.
