22
Woodmansterne Road, Coulsdon, CR5
Guide price £600,000
3 bedrooms, 1 bathrooms, 2 receptions
Summary:
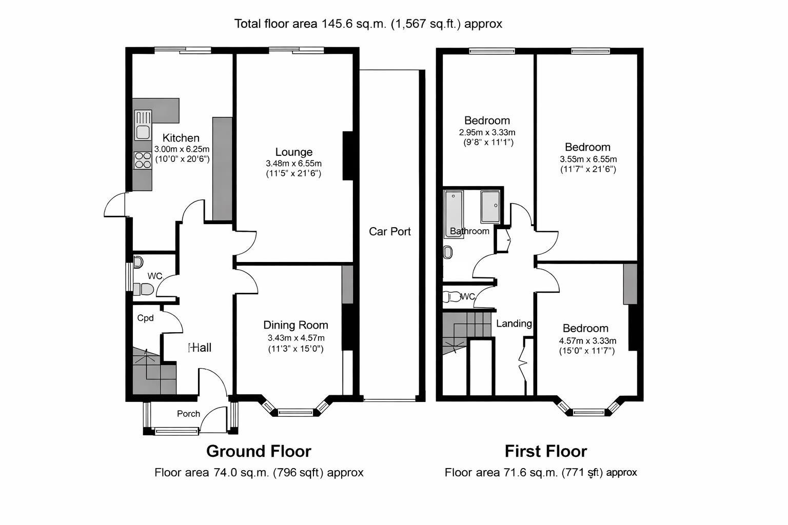
A great opportunity to own this charming three bedroom detached house in Woodmansterne Road, ideal for families seeking a spacious, well presented home in a sought after area. As you step into the property, you will be impressed by the spacious and well proportioned rooms sizes, with two large reception rooms and a kitchen breakfast room with doors opening out to the garden. There is also a downstairs WC for added convenience. Upstairs you will find three comfortable double bedrooms and a recently renovated bathroom. The location is particularly advantageous, with esteemed schools such as Smitham Primary, Chipstead Valley Primary, Woodcote Primary and Woodcote High School all within walking distance. Local shops and amenities are conveniently close, while commuters will appreciate the excellent transport links, with Coulsdon Town and Coulsdon South mainline train station providing direct access to Central London, alongside nearby bus services connecting to Croydon, Coulsdon, Banstead, and Epsom.The rear garden is a delightful retreat to relax and enjoy, featuring a spacious decking area and a large lawn section. A driveway and carport for vehicles at the front adds to the convenience of this lovely property. This home truly offers a perfect blend of comfort, style, and practicality in a sought-after location.
Full Details:
Accommodation
Entrance Porch
Entrance Hall
Understairs storage cupboard, radiator, stained glass window to front aspect.
Downstairs WC
WC, vanity wash hand basin with chrome mixer tap and storage below, boiler, fitted cupboards, extractor fan, double glazed obscure window to side aspect, vinyl flooring.
Living Room
Double glazed window to front aspect, fitted carpet, radiator.
Reception Room
Radiators, laminate flooring, double glazed sliding doors leading out to garden
Kitchen
Range of fitted kitchen units and drawers, laminate worktop, inset double bowl stainless steel sink with chrome mixer tap, integrated oven and grill, electric hob and extractor fan above, space for washing machine and dishwasher, space for tall fridge freezer, tiled splashback, vinyl flooring, double glazed sliding doors leading out to garden, door providing side access into lean to.
Lean to
Gates for front and rear access, light and power sockets.
Stairs to 1st floor landing
Double glazed window to front aspect, built in cupboards, fitted carpet, loft access (with pull down ladder, part boarded for storage).
Bedroom One
Radiator, laminate flooring, double glazed bay window to front aspect, fitted wardrobe with mirrored doors.
Bedroom Two
Double glazed window to rear aspect, laminate flooring, radiator.
Bedroom Three
Radiator, laminate flooring, double glazed window to rear aspect.
Bathroom
Modern white suite comprising of panel enclosed bath with chrome mixer tap and hand shower attachment, shower cubicle with concertina door, thermostatic shower, pedestal wash hand basin with chrome mixer tap, tiled walls, wood effect tiled flooring, extractor fan, double glazed obscure window window to side aspect, radiator.
Separate WC
With vinyl flooring, WC and double glazed obscure window to side aspect.
Outside
Carport
Driveway providing off street parking for one car
Front Garden
Rear Garden
Elevated decking area, large lawn section, pond, borders with shrubs, shed, access to garage, detached workshop with power
BUYER’S INFORMATION
Under UK law, estate agents are legally required to conduct Anti-Money Laundering (AML) checks on buyers and sellers to comply with regulations. These checks are mandatory, and estate agents can face penalties if they fail to perform them. We use the services of a third party to help conduct these checks thoroughly. As such there is a charge of £36 including vat, per person. Please note, we are unable to issue a memorandum of sale until these checks are complete
Viewing & Disclaimer:
Please contact us on 020 8647 4422 if you wish to arrange a viewing appointment for this property, or require further information.
Energy Performance Certificate
Click here to view the Energy Efficiency Rating and Environmental Impact Rating for this property.
Cromwells - SM6 endeavour to maintain accurate depictions of properties in Virtual Tours, Floor Plans and descriptions, however, these are intended only as a guide and purchasers must satisfy themselves by personal inspection.
