15
Purley Bury Avenue, Purley, CR8
£2,295 PCM
3 bedrooms, 1 bathrooms, 1 receptions
Summary:
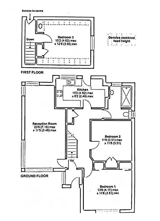
Available unfurnished is this extremely well presented three bedroom chalet bungalow residing in an ever popular and tranquil residential location, close to a variety of transport links and amenities.Features include off street parking to the front of the property, garage, large living area, separate kitchen, modern shower room and large rear garden comprising patio for entertaining with an additional tiered lawn area.The property is situated on a quiet, tree-lined road, providing a serene environment while still being within easy reach of local amenities. A short walk will take you to both Purley and Riddlesdown Stations, making commuting a breeze. Families will appreciate being within the catchment area for Riddlesdown Collegiate, a well-regarded school.The property is available for immediate occupation.EPC Rating D, Council Tax Band F, Croydon Council.
Full Details:
Viewing & Disclaimer:
Please contact us on 02086474422 if you wish to arrange a viewing appointment for this property, or require further information.
Energy Performance Certificate
Click here to view the Energy Efficiency Rating and Environmental Impact Rating for this property.
Cromwells - SM6 endeavour to maintain accurate depictions of properties in Virtual Tours, Floor Plans and descriptions, however, these are intended only as a guide and purchasers must satisfy themselves by personal inspection.
